walter schober
dipl.-ing.
en
architektur
Leistungen
Projekte
Innenausbau
Dachgeschoss
Küche
Möbel
Diele
Schlafzimmer
Hochbau
2231 Strasshof
2372 Gießhübl
3040 Neulengbach
7053 Hornstein
9754 Rottenstein
Pavillon
Moschee
Biographie
Kontakt
Leistungen
Projekte
Innenausbau
Dachgeschoss
Küche
Möbel
Diele
Schlafzimmer
Hochbau
2231 Strasshof
2372 Gießhübl
3040 Neulengbach
7053 Hornstein
9754 Rottenstein
Pavillon
Moschee
Biographie
Kontakt
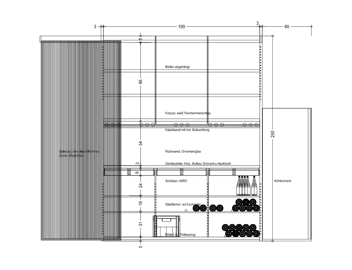
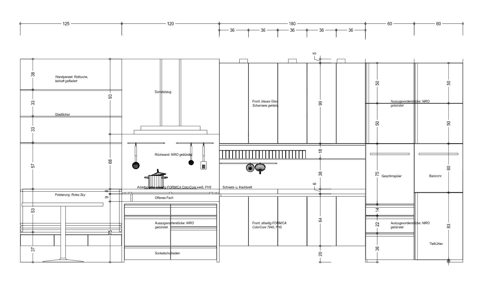
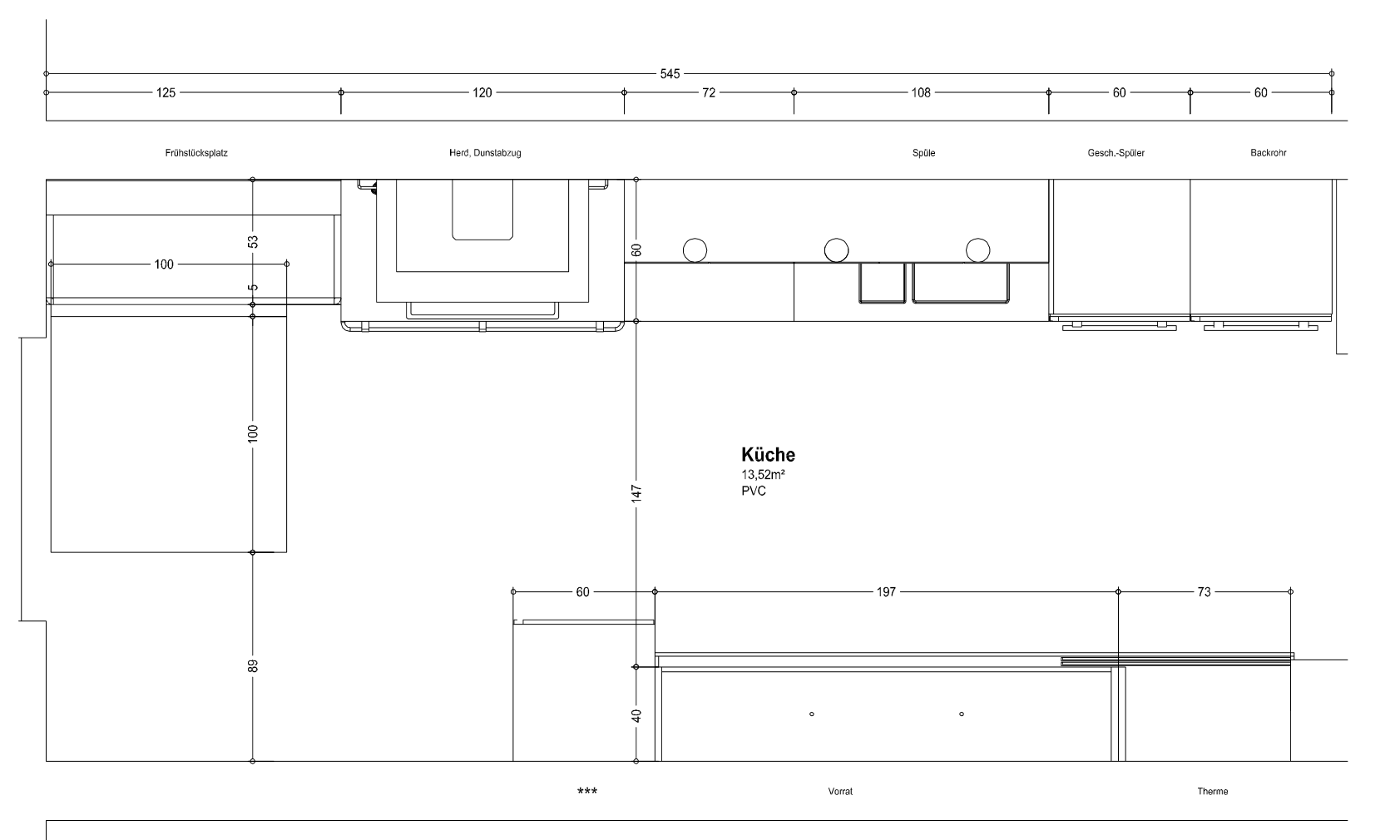
Küche
Küchen Pläne